1
1
St. Georges Avenue

£365,000

St. Georges Avenue
St. George

Features:

Energy efficiency rating

Current
Potential

Summary:

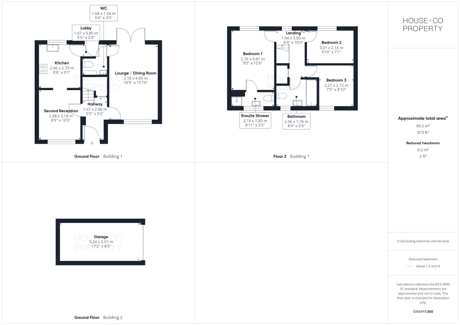
This delightful 3 bedroom end of terrace modern house is set in this cul-de-sac style location. Offering a perfect blend of comfort and convenience with river walks on your doorstep and the picturesque Conham River Park just a leisurely stroll away.

As you step inside there is an inner hallway that leads to a well presented lounge / dining room, a second reception room that leads to a modern stylish fitted kitchen, a rear lobby and cloakroom. Upstairs are three bedrooms ( the master having its own private ensuite shower room) and a family bathroom. Outside, the enclosed low maintenance southerly facing rear garden is a good size with gated side access.

There is also a good sized single garage and parking space situated to the front of the property, UPVC double glazing, gas central heating from a combination boiler and NO CHAIN !

For those who enjoy cycling the nearby cycle path to the city and Temple Meads offers a wonderful opportunity to explore the surroundings with ducks, nature walks, boats, canoeing, paddle boarding but also still within easy reach of St George’s popular shops, cafes / bars and amenities

Check out the VIRTUAL TOUR and come to have a look at all the property has to offer !

Book free valuation

Got questions? Call 0117 9070020 and chat to one of our property pros!

House + Co Property logo