1
1
The Avenue

£440,000

The Avenue
St. George

Features:

Energy efficiency rating

Current
Potential

Summary:

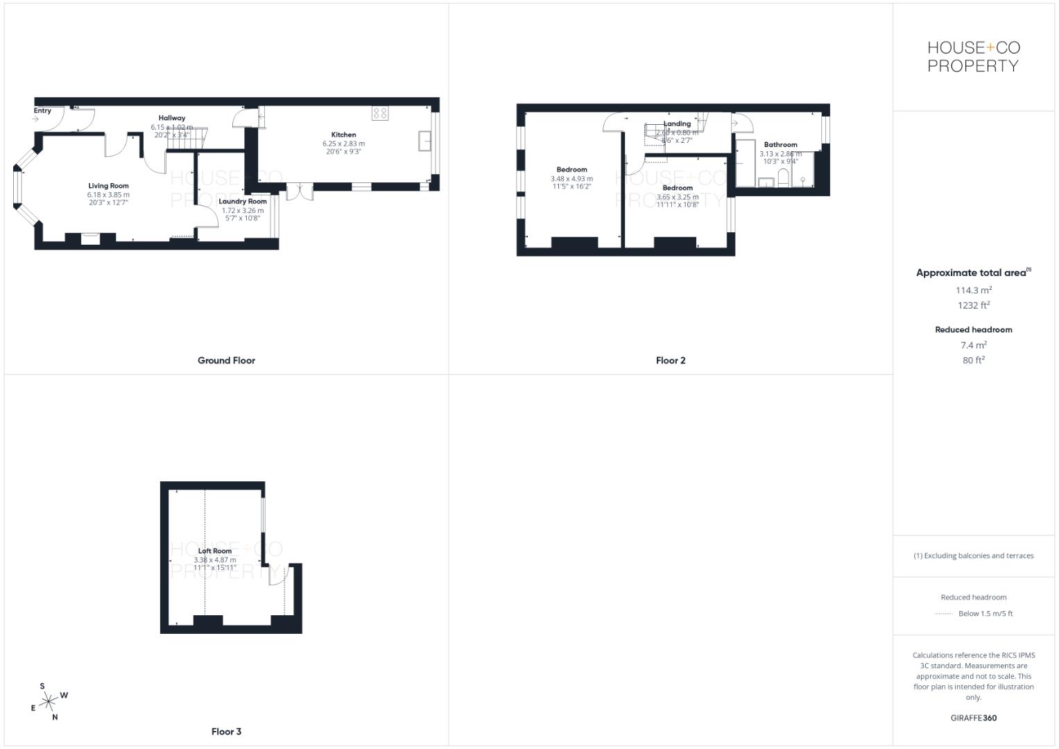
This lovely Victorian style house is filled with character and features at every turn giving a well proportioned home with a lovely lawned Westerly facing rear garden.

Set in this popular location the house briefly comprises inner porch and hallway, a large lounge / diner with wood burning stove and exposed brick feature chimney and stripped floorboards, a seperate office with utility area and large a spacious open plan modern stylish kitchen / breakfast room (with vaulted ceiling and velux window ) to the ground floor.

Above are 2 good sized double bedrooms, a spacious traditional style bathroom with separate bath and large walk in shower cubicle and Scandinavian style stairs to a loft room above (see notes).

Further benefits include stripped and varnished floorboards, stained glass, an overhauled roof and a very pleasant style the house also benefits a mature lawned rear westerly facing garden with decked pergola area and shed to the rear rare to find in the area.

With double glazing, gas central heating from a combination boiler and set within walking distance of St George’s park, Church Road’s popular shops, cafes bars and amenities along with the greenery of Troopers Hill Nature reserve close by this is well worth a look!

*Please note that we are not aware of any building regulation approval on the loft room and therefore any interested parties are to carry out any checks to meet their own satisfactory.*

Book free valuation

Got questions? Call 0117 9070020 and chat to one of our property pros!

House + Co Property logo