1
Dram Lane

£375,000

Dram Lane
St George

Features:

Energy efficiency rating

Current
Potential

Summary:

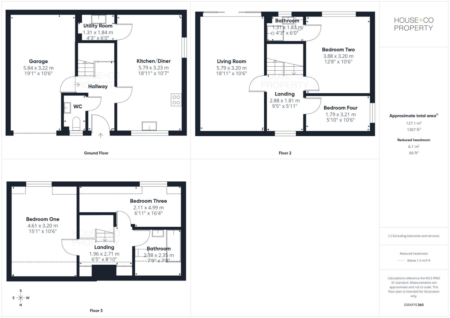
Stunning views of Troopers Hill! This lovely modern detached home is tucked away in a private cul-de-sac within walking distance of both Troopers Hill and Conham Nature reserves.

Offering flexible living over three floors the property consists of a beautiful kitchen dining room with dual aspect windows to enjoy the view. There’s a useful utility room, wc and doorway into the full length integral garage.

The first floor is home to two bedrooms, one with an ensuite and a large landing which doubles up as a bright study. The full length living room opens up onto the rear garden terrace which offers a sunny sociable space to enjoy the incredible views towards Troopers Hill.
On the top floor you’ll find two further great size double bedrooms along with a family sized bathroom.

Set in a quiet spot this home offers a peaceful setting whilst still having easy access to the bustle of both Hanham High street and Church Road in Redfield. The property also benefits from a corner plot with additional land to the side that could lend to further development subject to planning. Please call to view!

Book free valuation

Got questions? Call 0117 9070020 and chat to one of our property pros!

House + Co Property logo