1
Burchells Green Road

£340,000

Burchells Green Road
Bristol

Features:

Energy efficiency rating

Current
Potential

Summary:

If you’ve been searching for a home with soul, style, and standout features, this beautiful stone-fronted semi is sure to impress. Brimming with character, it seamlessly blends period charm with thoughtful touches — from stripped wooden floorboards and reclaimed parquet flooring to elegant stained glass and a cosy log burner that creates a warm, inviting heart to the home. And as a unique finishing touch, the mature olive tree adds a hint of Mediterranean charm to the setting.

Perfectly positioned on the fringes of Kingswood and St George, the property enjoys the best of both worlds — a peaceful residential feel while being just a short stroll from Rodney Road playing fields. A vibrant mix of independent shops, cafés, and restaurants are all within easy reach, with the ever-popular Rose & Crown offering the perfect local spot for relaxed dining.

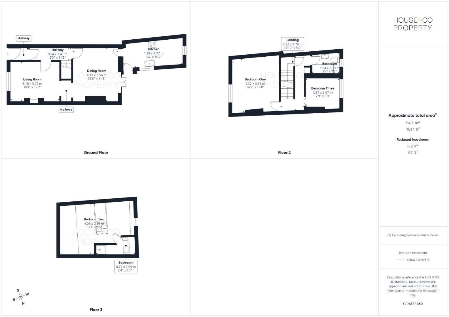
Step inside and you’re welcomed by an entrance vestibule leading into a hallway that sets the tone for what’s to come. The lounge is a cosy retreat centred around the log burner, while the full-width dining room provides an ideal space for entertaining. The generously sized kitchen offers plenty of room for cooking and gathering alike.

Upstairs, the first floor hosts two well-proportioned bedrooms and a family bathroom, while a staircase leads to a superb converted loft complete with its own en-suite — perfect as a principal suite, guest space, or home office.

Outside, the property continues to deliver with an attractive frontage, convenient side access, and a fully enclosed westerly rear garden. A substantial garden workshop, along with an additional covered area, offers fantastic flexibility — whether for hobbies, storage, or creative use.

A truly special home that combines character, comfort, and location — early viewing is highly recommended.

Book free valuation

Got questions? Call 0117 9070020 and chat to one of our property pros!

House + Co Property logo