1
1
Seneca Street

£375,000

Seneca Street
St George

Features:

Energy efficiency rating

Current
Potential

Summary:

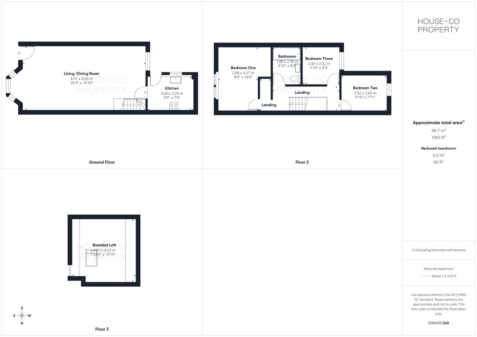
Well presented Victorian terrace full of charm and character located in St George just a short walk from St George’s Park. This lovely home has open plan living with its spacious living and dining room which leads on to a modern kitchen to the rear.

The first floor offers two double bedrooms and a further single bedroom along with a family bathroom. There is also great access to the boarded loft and a velux window by a drop down ladder. Outside there is a great size westerly facing garden with patio and lawn.

Seneca St is a popular street and is within walking distance of the many independent shops, delis, cafes, bars and restaurants for those wanting a local evening out. This fantastic home is in a great spot to enjoy walks in Avon View Cemetery and St Georges Park along with great links into the city. Please call to view!

Book free valuation

Got questions? Call 0117 9070020 and chat to one of our property pros!

House + Co Property logo