1
1
Speedwell Road

£310,000

Speedwell Road
Bristol

Features:

Energy efficiency rating

Current
Potential

Summary:

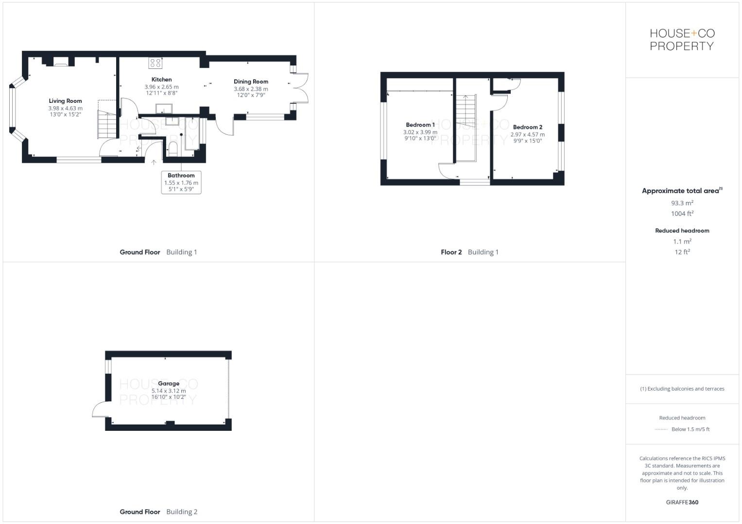
Welcome to this well-presented 2 bedroom end of terrace located just a short walk away from St. George Park. With good transport links into the city and the popular Church Road within reach with all it’s independent shops, cafes and amenities, this property has so much to offer and is ideal for first time buyers.

Comprising of entrance hallway leading to a spacious light and airy bay lounge, a modern bathroom and an open plan kitchen diner featuring french doors looking out onto the garden. The south-facing garden can offer off-street parking with a dropped curb and wooden gates to the side, a patio space perfect for hosting friends and family and a private garage to the rear. Upstairs you’ll find two full-width double bedrooms.

Further benefits include double glazing, gas central heating from a combination boiler and much more!! Don’t miss out on the opportunity to make this gem your own, call now to book a viewing !!

Book free valuation

Got questions? Call 0117 9070020 and chat to one of our property pros!

House + Co Property logo