1
1
Hayward Road

£450,000

Hayward Road
Barton Hill

Features:

Energy efficiency rating

Current
Potential

Summary:

“We have truly loved every moment of our time at Hayward Road. It has been the perfect backdrop for raising our two children, and the only reason we are saying goodbye is to pursue a new chapter in the countryside. Over the years, we’ve poured our hearts into the property, significantly upgrading it with a spacious loft conversion and a fresh, modern aesthetic throughout.

One of our favourite features is the south-facing garden; it’s a total sun-trap that becomes a blissful retreat from March right through the summer. The location has been a dream for our family—having Netham Park just two minutes away for playground trips and dog walks has been invaluable. Plus, whenever we’ve craved a bit of nature, a stroll down the river and up Troopers Hill feels like a true escape into the wild, right on our doorstep.”

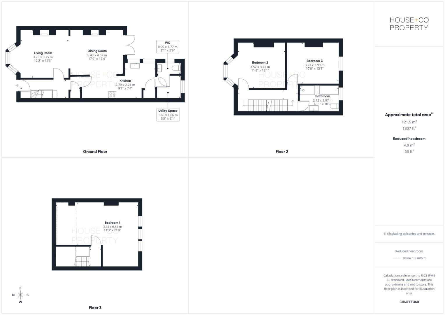
This stunning 3 bedroom terrace, set over three floors, is located just a short stroll away from Netham Park and the popular Church Road offering a selection of independent shops, cafes and pubs.

Close to the Bristol to Bath Cycle Path and the Lawrence Hill Train Station, this spacious house comprises of entrance hallway leading to a lovely open-plan living dining room featuring a log burner and stripped floorboards. The dining room is opened up to the stylish modern kitchen which leads to a utility space and downstairs WC. Outside you’ll find a south-facing private garden featuring a pergola, perfect for hosting friends and family.

On the first floor, you’ll find two double bedrooms and a four-piece bathroom suite. The staircase leading up to the second floor boasts a velux window. The dormer loft conversion offers a spacious, light and airy master bedroom.

Further benefits include no onward chain, double glazing, gas central heating from a combination boiler and much more! Don’t miss out on the opportunity to make this gem your own, call now to book a viewing!!

Book free valuation

Got questions? Call 0117 9070020 and chat to one of our property pros!

House + Co Property logo